Lugao에서 생산한 GW13 시리즈 변압기 중성점 갭 접지 보호 장치는 낙뢰 과전압, 스위칭 과전압 및 전력 주파수(과도) 과전압으로부터 변압기 중성점의 절연을 보호하도록 설계되었습니다. Lugao는 전문적인 생산 장비와 풍부한 수출 경험을 보유하고 있으며 보유 재고를 신속하게 배송할 수 있습니다.
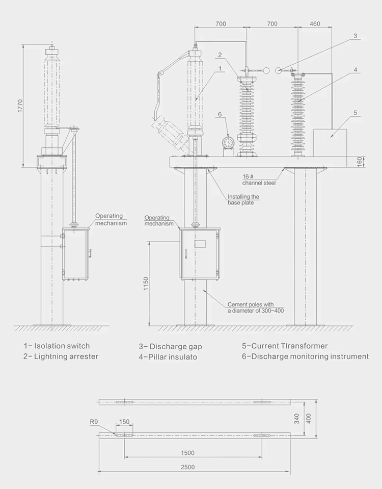
Lugao의 GW13 계열 변압기 중성점 과전압 보호기는 주로 110kV 및 220kV 전력 변압기의 중성점 회로에 사용됩니다. 이는 과전압 손상으로부터 변압기의 중성점 절연을 보호하고 변압기가 접지 및 비접지 중성점 작동 모드 간에 전환할 수 있도록 합니다. 낙뢰, 전원 주파수 및 스위칭 과전압에 대한 동시 보호가 필요한 경우 보호를 위해 갭과 어레스터를 병렬로 연결할 수 있습니다. GW13 시리즈 중성점 과전압 보호 장치는 단로기, 산화아연 피뢰기, 방전 갭 및 변류기를 통합한 완전한 세트입니다. 높은 열용량과 뛰어난 보호 기능, 유연한 구성, 사용 편의성이 특징입니다. 사용자 요구에 맞게 순수 간격 설계 또는 단로기와 방전 간격의 조합을 선택할 수 있습니다.
GW13 보호 장치 기술 사양
| lt |
단위 |
논쟁 |
||
| 제품 모델 |
|
루가오-gw13-110 |
루가오-gw13-220 |
|
| 정격전압 |
KV |
110 | 220 | |
| 변압기 중립 내전압 |
번개 완전 및 컷 내전압(피크) |
KV |
250 | 400 |
| 1min 전원 주파수(실효값) |
KV |
95 | 200 | |
| 중립 분리 스위치 |
정격전류 |
A | 630 | 630 |
| 작동 메커니즘 |
|
CS14G(수동) 또는 CJ2(전동) |
||
| 산화아연 피뢰기 |
정격전압(RMS) |
KV |
72 | 144 |
| 연속 작동 전압 |
KV |
58 | 116 | |
| DC 1mA 기준 전압 |
KV |
103 | 205 | |
| 낙뢰 전류의 잔류 전압 |
KV |
186 | 320 | |
| 방전 갭 |
갭 전극 거리 범위 |
mm | 90-150 | 220-320 |
| 상용주파 방전 전압 범위 |
KV |
50-83 | 100-166 | |
| 1.2/50us 임펄스 방전 전압 |
KV |
120-190 | 250-320 | |
| 변류기 |
유형 |
|
에폭시 수지 주입 완전밀폐형 기둥형 10kv |
|
| 변환 비율 |
|
100/5,200/5,300/5.40015.50015.600/5 |
||
